The ISLA

Thoughtfully designed ranch home

3 Bedrooms

2.5 Bathrooms

3 car garage

2,001 Square Feet

Steps from garage basement

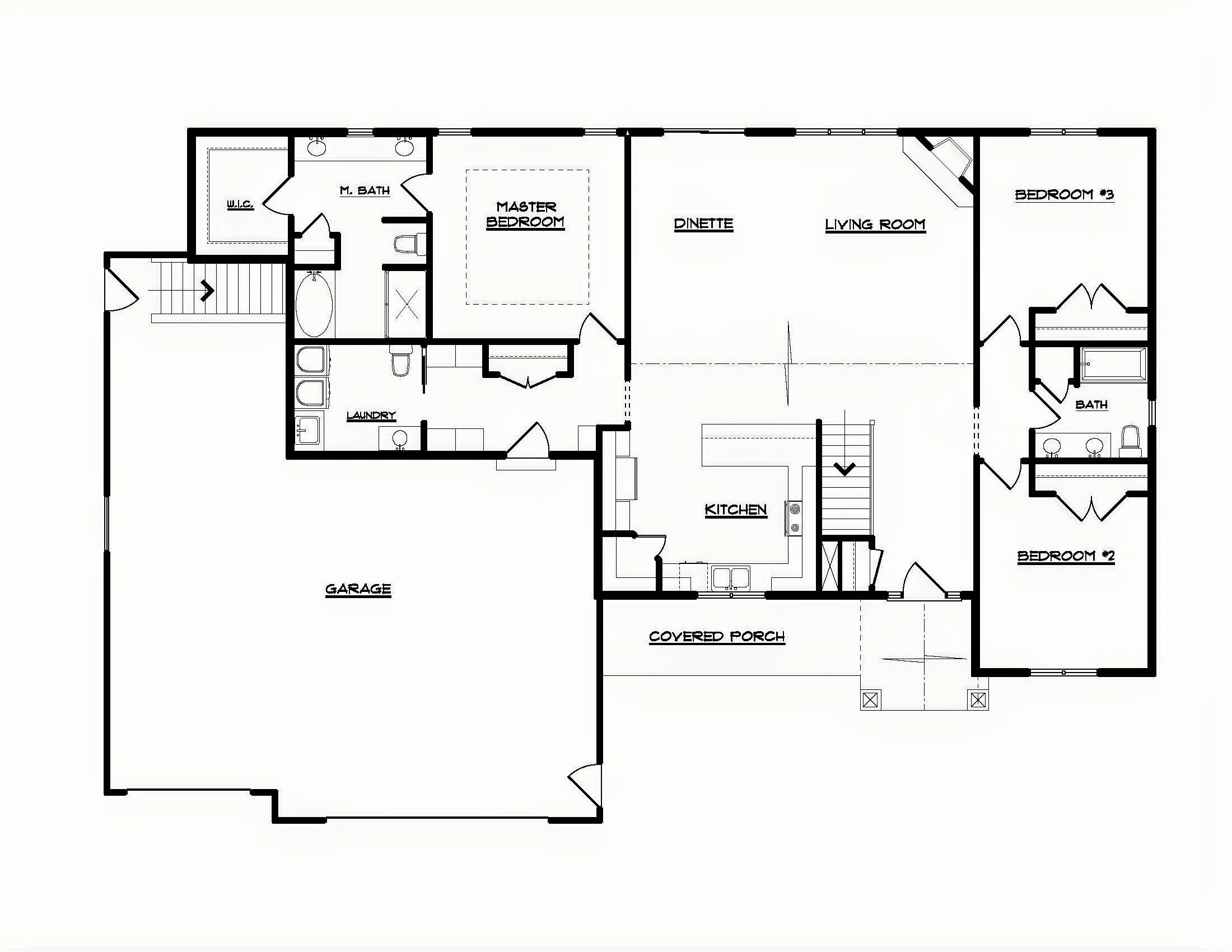
Floor Layout

Plan Details

The ISLA is a beautifully streamlined ranch home designed for homeowners who value both style and practicality. Its exterior showcases a timeless combination of stone accents, detailed siding, and balanced rooflines that create welcoming curb appeal. A covered front porch adds character while providing a warm and inviting entry experience.

Inside, the layout is centered around open, connected living spaces. The kitchen flows naturally into the dinette and living area, creating a comfortable gathering space ideal for entertaining or everyday family life. The kitchen is designed for efficiency, offering ample cabinetry, convenient counter space, and a layout that keeps everything within reach. Natural light enhances the main living areas, while the nearby covered porch extends the living space outdoors for relaxing evenings or casual get-togethers.

The owner’s suite is thoughtfully positioned for privacy and comfort. The spacious primary bedroom connects to a well-appointed bath featuring dual vanities, a soaking tub, separate shower, and a generous walk-in closet. Direct access to the laundry area enhances everyday convenience and supports an efficient routine.

The garage connects through a practical transition space, helping maintain organization while keeping daily traffic streamlined. The overall design emphasizes simplicity without sacrificing functionality, making The ISLA an excellent choice for homeowners seeking single-level living with thoughtful separation of space.

With its clean layout, private suite arrangement, and open central living area, The ISLA offers comfort, efficiency, and long-term livability in a well-balanced footprint.

Photo Gallary

Key Features Section

Interior Highlights

  1. Open Living & Dining Connection – Kitchen, dinette, and living areas flow together to create a bright, connected gathering space.

  2. Private Owner’s Suite Layout – Spacious primary retreat with dual vanities, soaking tub, separate shower, and walk-in closet.

  3. Efficient Everyday Design – Main-floor laundry near the owner’s suite and direct garage access support organized daily routines.

Exterior Features

  1. Timeless Ranch Elevation – Stone accents, detailed siding, and balanced rooflines create strong curb appeal.

  2. Welcoming Covered Front Porch – Defined entry that adds warmth and architectural character.

  3. Integrated Garage Design – Functional garage placement that complements the home’s overall proportions.

Upgrade Options

  1. Finished Lower Level Package – Expand living space with a finished basement featuring a recreation room, additional bedroom, and full bath — perfect for entertaining or hosting guests.

  2. Luxury Owner’s Bath Upgrade – Enhance the primary suite with a tiled walk-in shower, freestanding soaking tub, upgraded fixtures, and custom vanity finishes for a spa-like experience.

  3. Chef’s Kitchen Enhancement – Upgrade cabinetry, quartz countertops, premium appliance package, and extended island design to elevate both functionality and style.

  4. Covered Patio Outdoor Living Upgrade – Transform the covered patio into an outdoor living destination with added ceiling details, lighting, and optional fireplace or outdoor kitchen features.

Why Family Choose The ISLA

  • Single-Level Simplicity – Everything on one floor provides long-term comfort and ease of living.

  • Smart, Efficient Layout – Thoughtful room placement maximizes usable space without wasted square footage.

  • Comfortable Separation of Space – Owner’s suite positioned for privacy while maintaining connection to main living areas.

Ready to build this Plan?

Explore Similar Plans