The LEO

Moderen Range Style Home

3 Bedrooms

2 Bathrooms

3 car garage

1,915 Square Feet

First Floor Office

Steps from garage basement

Covered Patio

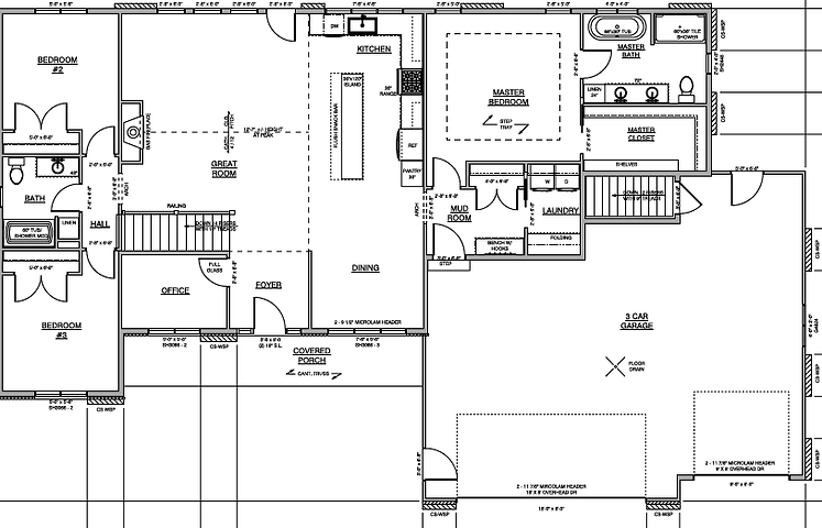
Floor Layout

Plan Details

The Leo is a thoughtfully designed ranch home that blends open-concept living with private retreats and highly functional everyday spaces. Designed for modern lifestyles, this plan offers a natural flow between living areas while maintaining comfortable separation where it matters most. From entertaining guests to enjoying quiet evenings at home, The Leo delivers a balance of style, efficiency, and livability that works for families at every stage of life.

At the center of the home, a spacious great room connects seamlessly to the kitchen and dining area, creating a bright and inviting gathering space filled with natural light. The kitchen serves as the heart of the home, featuring a large center island with seating, abundant cabinetry, and a walk-in pantry that keeps everything organized and within reach. Easy access to the covered patio extends the living space outdoors, making it ideal for relaxing or hosting gatherings throughout the seasons.

The owner’s suite is thoughtfully positioned for privacy, creating a peaceful retreat separate from the secondary bedrooms. The suite includes a spacious bedroom, a spa-inspired bath with dual vanities, and a generous walk-in closet designed for everyday convenience. Two additional main-floor bedrooms and a nearby full bath provide comfortable accommodations for family members or guests while maintaining a functional and efficient layout.

Designed with flexibility in mind, The Leo also includes a dedicated front office or flex room, perfect for remote work, study, or hobbies. A convenient main-floor laundry room and practical mudroom entry from the garage help keep daily routines organized and clutter-free. The spacious three-car garage offers ample room for vehicles, storage, and recreational equipment.

The lower level is planned for future expansion, allowing homeowners to add additional living space such as a recreation room, bedroom, bathroom, or storage areas as needs evolve over time. With timeless exterior styling, a welcoming covered entry, and carefully balanced architectural details, The Leo combines classic curb appeal with modern functionality — creating a home designed for comfort, connection, and long-term living.

Photo Gallary

Key Features Section

Interior Highlights

  1. Open-Concept Living – A spacious great room flows seamlessly into the kitchen and dining area, creating a bright, connected space ideal for everyday living and entertaining.

  2. Private Owner’s Suite Retreat – A thoughtfully separated primary suite featuring a spa-inspired bath and generous walk-in closet for comfort and privacy.

  3. Designer Kitchen with Walk-In Pantry – Oversized island seating, abundant cabinetry, and a functional pantry make the kitchen both a centerpiece and a highly efficient workspace.

Exterior Features

  1. Covered front entry

  2. Balanced rooflines

  3. Stone and siding accents

  4. Strong street presence with welcoming curb appeal

  • Open yet comfortable ranch layout

  • Private owner’s suite separation

  • Dedicated office space

  • Covered outdoor living area

  • Expandable basement design

  • Functional everyday flow from garage to kitchen

Why Family Choose The LEO

Ready to build this Plan?

Explore Similar Plans