The Meadow Park

a spacious ranch home

3 Bedrooms

2.5 Bathrooms

3 car garage

1,973 Square Feet

gas fireplace

Covered Patio

Steps from garge to basement

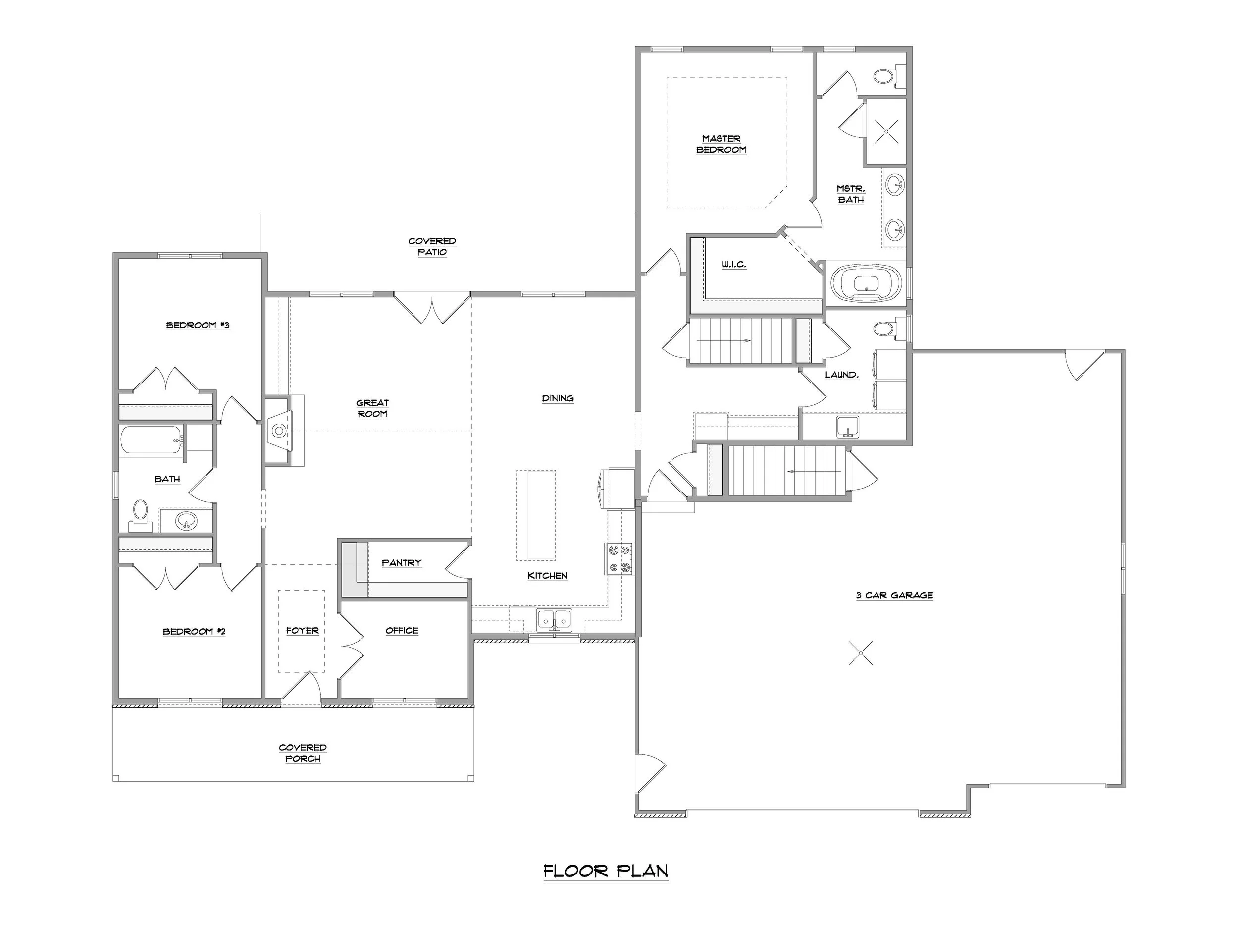
Floor Layout

Plan Details

The Meadow Park blends timeless ranch architecture with a layout designed for both everyday comfort and expanded living. Its front elevation showcases vertical siding details, stone accents, and balanced gables that create strong curb appeal and a welcoming presence. The covered front entry provides warmth and architectural depth, while the three-car garage integrates seamlessly into the overall design.

Inside, the open-concept main living area creates a natural gathering space at the center of the home. The kitchen flows effortlessly into the dining area and great room, offering clear sightlines and a comfortable, connected layout ideal for entertaining or family life. A large island anchors the kitchen, complemented by a walk-in pantry that enhances functionality and storage. Expansive windows in the great room allow natural light to fill the space, while access to the covered patio extends living outdoors.

The primary suite is privately positioned on its own wing of the home, creating a peaceful retreat. The suite includes a spacious bedroom, dual-vanity bath, soaking tub, separate shower, and walk-in closet. Nearby laundry access adds convenience and efficiency to daily routines.

On the opposite side of the home, two additional bedrooms share a full bath, offering privacy and flexibility for family members or guests. A dedicated office near the front of the home provides an ideal space for remote work, study, or hobbies. The insulated three-car garage offers ample space for vehicles, storage, and organization.

The lower level is thoughtfully finished to include a large recreation room, an additional bedroom, and a full bath, creating exceptional flexibility for entertaining, guests, or multi-generational living. With its combination of private bedroom separation, office space, and expanded lower-level living, The Meadow Park is designed to grow with your family while delivering comfort and style.

Photo Gallary

Key Features Section

Interior Highlights

  1. Open-Concept Kitchen & Great Room – Connected main living area with island seating and walk-in pantry.

  2. Private Primary Suite Wing – Spacious retreat with dual vanities, soaking tub, separate shower, and walk-in closet.

  3. Future Basement Expansion – Designed for recreation room, additional bedroom, and full bath to support long-term flexibility.

Exterior Features

  1. Timeless Ranch Elevation – Vertical siding accents and stone detailing create strong architectural presence.

  2. Covered Front Entry – Welcoming porch design adds character and depth.

  3. Integrated Three-Car Garage – Spacious garage layout designed for functionality and proportion.

Why Family Choose The Meadow Park

  • Dedicated Office Space – Ideal for remote work or flexible lifestyle needs.

  • Split-Bedroom Privacy – Primary suite separated from secondary bedrooms for comfort.

  • Expanded Living Potential – Finished basement provides additional room for entertaining or guest accommodations.

Ready to build this Plan?

Explore Similar Plans