The Ruth

Moderen Range Style Home

3 Bedrooms

2.5 Bathrooms

3 car garage

Pantry

1,850 Square Feet

First Floor Office

Steps from garage basement

Covered Patio

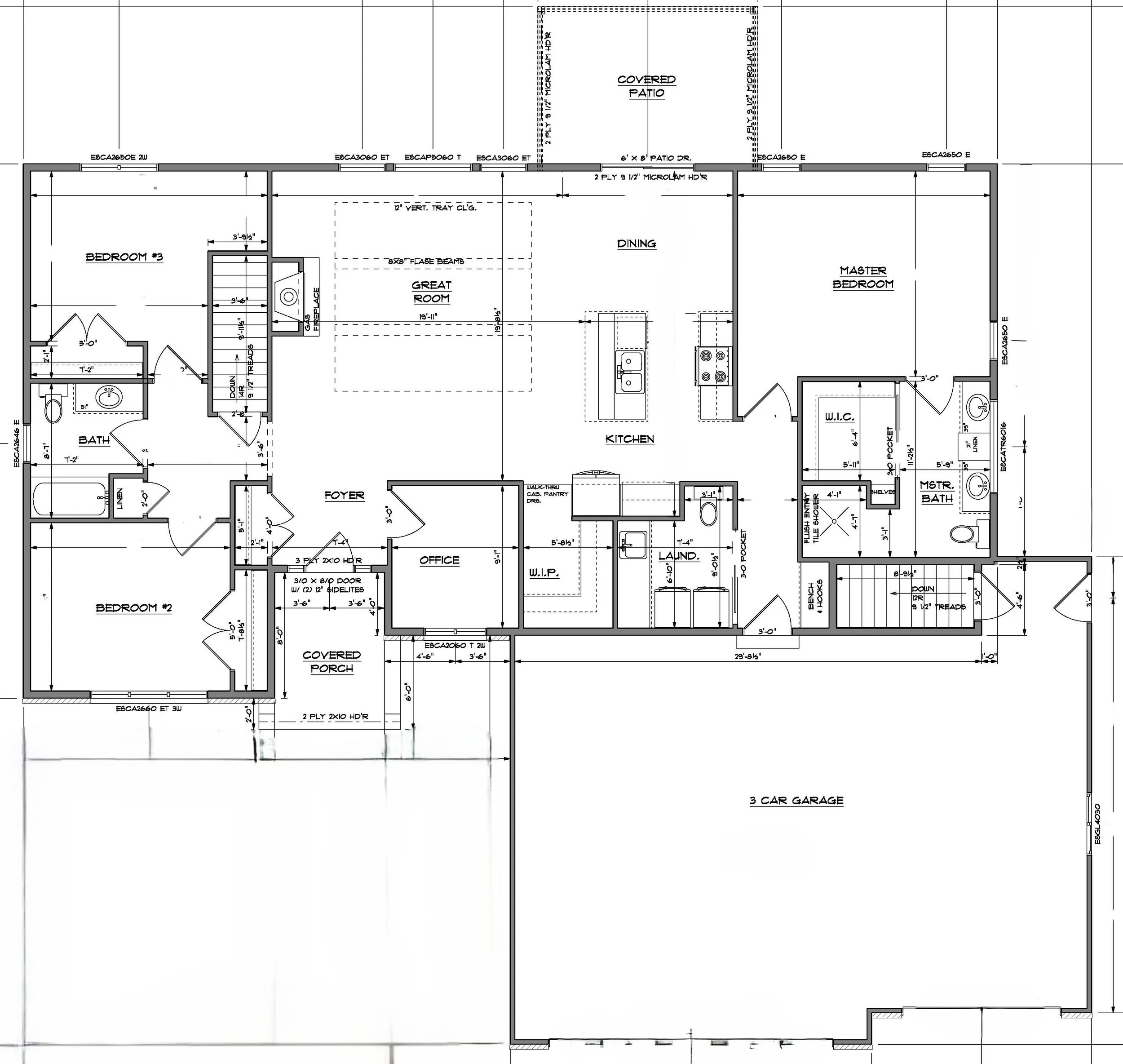
Floor Layout

Plan Details

The Ruth combines clean architectural lines with thoughtful ranch design to create a home that feels both welcoming and functional. The front elevation (page 1) showcases a modern blend of horizontal siding, stone accents, and a centered covered entry that provides visual balance and curb appeal. The attached three-car garage integrates seamlessly into the overall façade, creating both practicality and proportion.

Inside, the main living space is centered around an open great room that flows directly into the kitchen and dining area (page 2). This layout creates a comfortable and connected environment ideal for entertaining or everyday family life. The kitchen features a spacious island, efficient cabinetry layout, and direct access to the covered patio, extending the living area outdoors for gatherings or quiet evenings.

The primary suite is privately positioned on one side of the home, offering a spacious bedroom, dual-vanity bath, separate shower, and walk-in closet. This thoughtful separation from the secondary bedrooms enhances privacy and comfort. Convenient access to the laundry and garage entry supports smooth daily routines.

On the opposite side of the home, two additional bedrooms share a full bath, creating a practical split-bedroom layout. A dedicated office near the foyer provides flexible space for remote work, study, or hobbies.

The foundation plan (page 3) shows a full basement designed for future finishing, offering the potential for expanded recreation space, additional bedroom and bath, and ample storage. This flexibility allows The Ruth to grow alongside your family over time.

With its balanced layout, open central living space, and built-in expansion potential, The Ruth delivers timeless ranch living designed for comfort, function, and long-term adaptability.

Photo Gallary

Interior Highlights

  1. Open Great Room & Kitchen Layout – Central island and seamless connection to dining and covered patio.

  2. Split-Bedroom Design – Private primary suite separated from secondary bedrooms for comfort.

  3. Dedicated Main-Floor Office – Flexible space ideal for work-from-home or study.

Exterior Features

  1. Modern Ranch Elevation – Clean siding lines with stone accents and balanced rooflines.

  2. Covered Front Entry – Welcoming and proportionate entry design.

  3. Three-Car Garage – Spacious and integrated for functionality and storage.

Key Features Section

Why Family Choose The Ruth

  • Balanced & Efficient Layout – Central living space with thoughtful bedroom separation.

  • Flexible Office Space – Adaptable room for evolving lifestyle needs.

  • Future Basement Potential – Full lower level designed for expansion as needs change.

Ready to build this Plan?

Explore Similar Plans